همانطور که در سلسله مقالات روش نقشهخوانی اشاره شد. خرابیهای سیستمهای الکتریکی میتواند شامل بخشهای مختلفی باشد.
برای افزایش سرعت در عیبیابی باید ابتدا باید به نقشههای الکتریکی خودرو موردنظر دسترسی داشت. سپس با روش نقشهخوانی خودرو آشنا شد.
بعد از آن میتوان عملکرد مدار را تحلیل کرد و در نهایت با مشاهده و بررسی علائم خرابی به مشکل پیبرد و آن را رفع کرد؛ بنابراین مرحله دوم آشنایی با روش تحلیل مدار است. در این سلسله مقالات از هر خودرو یک یا چند مدار تحلیل خواهد شود تا با روش تحلیل آشنا شوید.
آنچه در این مقاله خواهید خواند...
روش تحلیل مدار تیبا
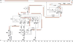
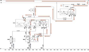
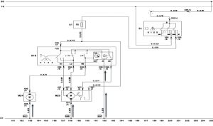
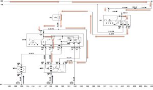
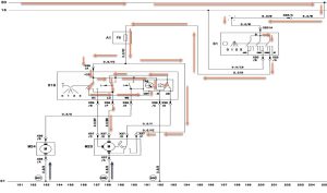
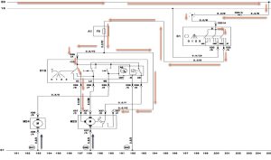
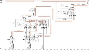
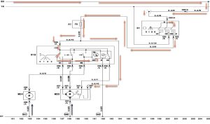
اگر روش نقشهخوانی الکتریکی خانواده تیبا را مطالعه نکردهاید. ابتدا آن را مطالعه کنید. نقشه مورد بررسی در این مقاله مدار برفپاککن است. شکل 1 این مدار را نشان میدهد.(برای دیدن فیلم آموزشی”روش نقشه خوانی خودرو تیبا” کلیک کنید
شکل 1 – نقشه شماتیک مدار برف پاک کن در تحلیل مدار تیبا
مرحله 1: بررسی اجزا موجود در تحلیل مدار تیبا
اولین مرحله در تحلیل مدار تیبا، شناسایی اجزا موجود در نقشه شماتیک است. شکل 2 این اجزا را معرفی میکند.
S1 : سوئیچ اصلی A1: جعبه فیوز اتاق S19: کلید برفپاککن
M32: مجموعه موتور برفپاککن M24: موتور پمپ شیشهشور
شکل 2- معرفی اجزا نقشه در تحلیل مدار تیبا
مرحله 2: بررسی شکل اجزا نقشه در تحلیل مدار تیبا
بررسی شکل نشاندادهشده در اجزا نقشه بسیار مهم است چون بدون آن نمیتوان مسیر دقیق جریان برق را تشخیص داد. بهعنوانمثال یکی از اجزا سوئیچ اصلی است. شکل 3 آن را نشان میدهد.
شکل 3- اجزا داخلی سوئیچ اصلی در تحلیل مدار تیبا
با مشاهده شکل 3 میتوان به عملکرد سوئیچ اصلی پی برد. سوئیچ 4 وضعیت دارد (0= خاموش 1= ACC 2=IGN 3= ST) در این مدار مرحله IGN ( سوئیچ باز ) اهمیت دارد بنابراین اتصالات مربوطه فقط در این حالت درج شدهاند.
جریان برق از پایه A کانکتور X20 وارد کلید شده و از طریق پایههای B کانکتور X20 و A از کانکتور X22( در زمان باز بودن سوئیچ) خارج میشود. در این مدار پایههای منتهی به ACC و ST اهمیتی در مدار ندارند. تمام اجزا مدار باید مانند سوئیچ اصلی بررسی شوند.
مرحله 3: عملکرد مدار در تحلیل مدار تیبا
الف: مسیر برق منفی (بدنه) در زمان خاموش بودن مدار
باتوجهبه اهمیت اتصالات منفی در تشخیص عیب در مدار لازم است حتماً مسیر منفی بهصورت کامل بررسی شود و مشخص شود در هر زمان کدام پایهها باید اتصال منفی داشته باشند. شکل 4 این مسیر را نشان میدهد.
شکل 4- مسیر جریان منفی در زمان خاموش بودن مدار – دید اولیه
نکته بسیار مهم: هنگام بررسی مدارها (منفی و مثبت) به وضعیت داخل اجزا نیز توجه شود. بهعنوانمثال در این حالت اگر موتور پمپ شیشهشور (کانکتور X38 پایه A ) منفی دارد .
جریان منفی از طریق آرمیچر موتور پمپ شیشهشور به پایه B آن کانکتور نیز خواهد رسید.
در مورد سایر اجزا نیز این موارد باید بررسی شود که در نهایت شکل 5 برای تشخیص اتصالات منفی در مدار قابلاستفاده خواهد بود.
شکل 5- مسیر جریان منفی در زمان خاموش بودن مدار – دید کامل
تمامی کانکتورهای دسته سیم نشاندادهشده در شکل 5 در زمان خاموش بودن مدار باید منفی داشته باشند. عدم وجود منفی در این بخشها نشانه قطعشدگی در آن بخش مدار است.
باتوجهبه روش عمومی عیبیابی الکتریکی آن بخش را میتوان کنترل کرد.
ب: مسیر برق مثبت با باز کردن سوئیچ
هنگامی که سوئیچ اصلی باز میشود جریان برق پس از عبور از فیوز F5 واقع در جعبه فیوز اتاق به دو قسمت تقسیم شده و به کلید برفپاککن (کانکتور X39 پایه A ) و هم به موتور برفپاککن (کانکتور X37 پایه F) میرسد.
شکل 6 این مسیر را نشان میدهد
شکل 6- مسیر جریان برق مثبت بعد از باز کردن سوئیچ
ج: مسیر جریان برق مثبت در حالت فعالکردن پمپ شیشهشور
بعد از اینکه کلید برفپاککن در وضعیت پمپ شیشهشور قرار میگیرد. جریان برق پس از عبور از وضعیت کلید پمپ شیشهشور به دو قسمت تقسیم میشود یکی به سمت یونیت تایمر برفپاککن میرود و دیگری به موتور پمپ شیشهشور وارد میشود. موتور پمپ شیشهشور هم دارای جریان مثبت و هم منفی شده بنابراین فعال میشود. شکل 7 این مورد را نشان میدهد.
شکل 7- مسیر جریان برق مثبت و منفی در زمان فعالکردن پمپ شیشهشور – بخش اول
اما جریانی برقی که به تایمر وارد میشود سبب فعال شده رله آن بهصورت تعریف شده میگردد. در نتیجه جریان برق به یکپایه رله وارد شده و از پایه دیگر خارج میشود و به ورودی کلید دور کند میرد. جریان برق (بدون اینکه کلید فعال باشد) از مسیر آن عبور میکند و به سمت دور کند موتور پمپ شیشهشور میرود و در نهایت سبب میشود هم زمان با پاشش موتور شیشهشور دور کند برفپاککن هم تا زمانی که رله تایمر روشن و خاموش میشود (معمولاً تا 3 ثانیه بعد از رهاکردن وضعیت آبپاش در دسته برفپاککن) فعال بماند. شکل 8 مدار را نشان میدهد.
شکل 8- مسیر جریان برق مثبت و منفی در زمان فعال کردن پمپ شیشهشور – کامل
د: مسیر جریان برق در حالت فعالکردن دور کند و تند
مسیر جریان مثبت و منفی در حالت دور کند بسیار ساده است. شکل 9 این مسیر را نشان میدهد.
شکل 9- مسیر جریان برق مثبت و منفی در زمان دور کند برفپاککن
نکته: برفپاککنها عموماً 3 زغاله هستند. زغال دور کند همیشه دورتر از زغال دور تند به منفی است.
مسیر دور تند نیز تغییر خاصی ندارد. به شکل 10 توجه کنید.
شکل 10- مسیر جریان برق مثبت و منفی در زمان دور کند برفپاککن
ه: مسیر جریان برق در حالت فعالکردن تایمر
وضعیت تایمر حالتی است شبیه زمانی که پمپ آبپاش فعال میشود. برای سهولت درک این مدار نیز در دو شکل نشان داده میشود. بخش اول رسیدن جریان برق به تایمر را معرفی میکند. (شکل 11)
شکل 11- مسیر جریان برق مثبت در زمان حالت اتوماتیک – بخش اول
پس از فعالشدن تایمر جریان برق به مسیر دور کند مطابق شکل 12 ارسال خواهد شد.
شکل 12- مسیر جریان برق مثبت در زمان حالت اتوماتیک – کامل
و: حالت پارک برفپاککن
همانطور که در مقاله مکانیزم ترمز و پارک تیغه های برفپاککن توضیح داده شده است. راننده میتواند هرجایی کلید برفپاککن را خاموش کند اما تیغه باید در پایینترین مسیر خود قرار گیرد. شکل 13 ایم مسیر را نشان میدهد.
شکل 13- مسیر جریان برق مثبت در زمان حالت پارک
همانطور که در شکل 13 مشاهده میشود جریان برق پس از واردشدن به موتور برفپاککن در حالتی که تیغه هر جای غیر از پایینترین حالت خود است از (کانکتور X37 پایه F ) خارج شده و به دسته برفپاککن و رله تایمر وارد میشود.
بدون اینکه رله تایمر فعال شود از پلاتین آن عبور کرده و به مسیر دور کند وارد میشود و برق مثبت دور کند موتور برفپاککن را تأمین میکند.
تا زمانی که مکانیزم پارک موتور برفپاککن مسیر برق مثبت را قطع نکرده باشد مدار در حالت دور کندکار میکند.
























